IMMOBILI

APPARTAMENTO DI TRE LOCALI

Pioltello | 3 | Mq 100 | 178.000,00

Descrizione

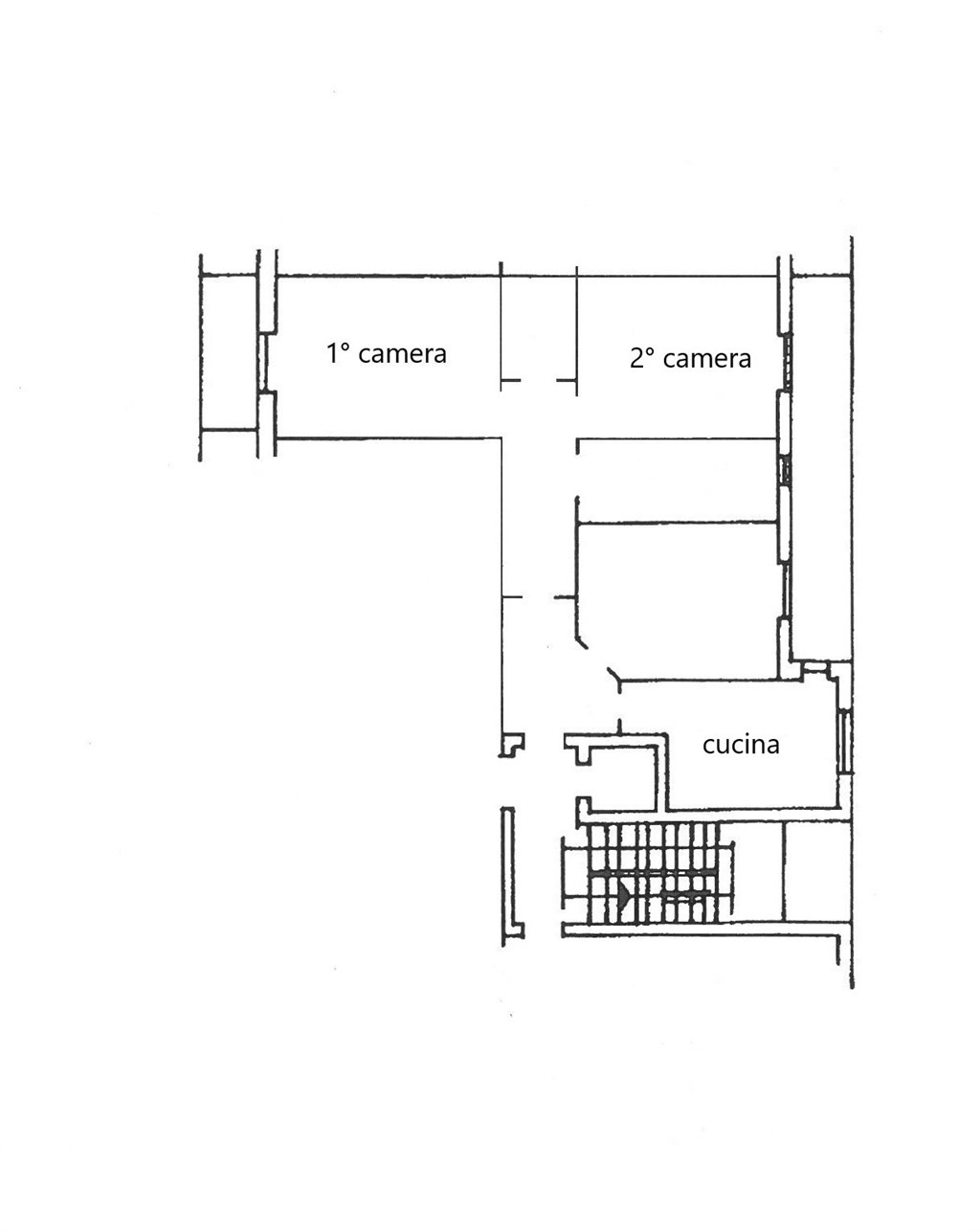
NEL QUARTIERE DENOMINATO SATELLITE ADIACENTE PIAZZA MERCATO. Condominio interessato da intervento statale ecobonus/sismabonus. Appartamento con ingresso e corridoio di disimpegno. Cucina abitabile, soggiorno, due camere da letto oltre il servizio. Dispone di locale ripostiglio interno. Le condizioni di manutenzione sono buone. Dotato di due balconi.

Dettagli

  • Riferimento: 21
  • Tipologia: Appartamento
  • Comune: Pioltello
  • Zona: centro zona mercato
  • Cucina: Cucina abitabile
  • Camere: 3
  • Bagni: 1
  • Box: Nessuno
  • Piano: 3° di 8
  • Anno costruzione: 1970
  • Stato conservazione: Buono
  • Stato: Occupato Proprietario
  • Spese cond. annue €: 1.200,00
  • Riscaldamento: Autonomo
  • Caratteristiche

    Ascensore, Portineria, Balconi, Giardino condominiale

    Efficienza energetica

    Localizzazione - VIA CILEA 3 Pioltello

    MediaImmobili

    Via Tintoretto, 23
    20096 Pioltello (MI)

    0292141098

    Richiedi informazioni

    Ai sensi e per gli effetti degli articoli 13 e 6 del Regolamento UE 2016/679, dichiaro di aver preso visione dell’informativa per il trattamento dei dati personali.
    logo

    Via Tintoretto, 23 - 20096 Pioltello (MI) - Tel. 0292141098


    APPARTAMENTO DI TRE LOCALI

    3 | Mq 100 | 178.000,00

    VIA CILEA 3 Pioltello

    NEL QUARTIERE DENOMINATO SATELLITE ADIACENTE PIAZZA MERCATO. Condominio interessato da intervento statale ecobonus/sismabonus. Appartamento con ingresso e corridoio di disimpegno. Cucina abitabile, soggiorno, due camere da letto oltre il servizio. Dispone di locale ripostiglio interno. Le condizioni di manutenzione sono buone. Dotato di due balconi.

    Riferimento: 21

    Tipologia: Appartamento

    Comune: Pioltello

    Zona: centro zona mercato

    Cucina: Cucina abitabile

    N. Bagni: 1

    N. Camere: 3

    Box: Nessuno

    Piano: 3° di 8

    Anno costruzione: 1970

    Stato conservazione: Buono

    Stato: Occupato Proprietario

    Spese cond. annue €: 1.200,00

    Riscaldamento: Autonomo

    Efficienza energetica

    Ascensore, Portineria, Balconi, Giardino condominiale